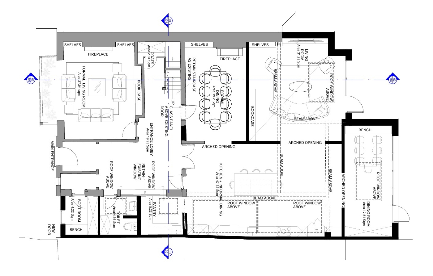
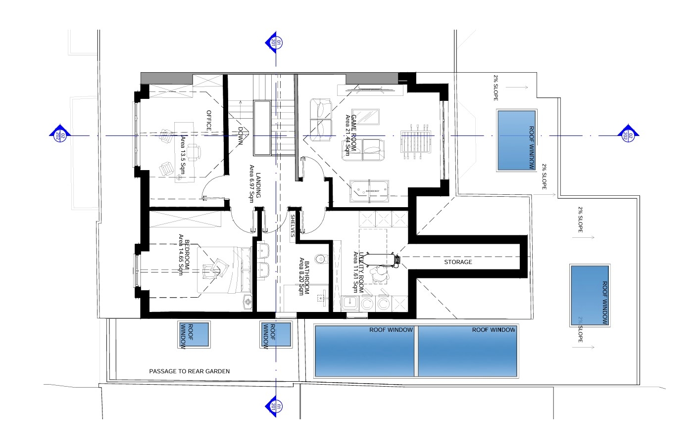
Project Overview:

This North London residential project was initiated by a client and friend who sought to secure planning permission for a comprehensive home transformation while still in the process of purchasing the property. The design included a wrap-around extension and a loft conversion, with significant changes to the internal layout across all floors. The project aimed to create a spacious, functional, and traditionally styled family home, balancing modern living needs with the preservation of the house’s original character.

Project Summary:


Client: Private homeowner in North London
Scope:
-Wrap-around ground floor extension
-Loft conversion with significant roof shape alteration
-Internal reconfiguration of the first (middle) floor
Key Features:
-Ground floor: Large open-plan kitchen and living area, plus a formal private living room for guests
-First floor: Master bedroom and two children’s rooms, each with its own bathroom
-Top floor: Guest room, studio, and game room
-Roof: Three new dormers (two at the front, one at the rear) with a hip-to-hip roof design
Design Approach:
-Maintained the traditional character of the house while introducing modern amenities
-Close collaboration with the client to ensure the design met all personal requirements
-Use of CGI and detailed plans to visualize the proposed changes
Planning Process:
-Successfully achieved planning permission for both the extension and loft conversion
-Design respected local architectural context and planning regulations, a key factor in North London projects
Client Satisfaction:
-The client was highly engaged throughout the process and pleased with the traditional look and functional improvements
-Planning application approved; the client is preparing to move in
Next Steps: Project will soon advance to the construction phase

This project exemplifies the value of thoughtful design and client collaboration in North London’s competitive property market. By combining a wrap-around extension and a loft conversion, the home’s living space and value were significantly enhanced, all while preserving its traditional charm—a hallmark of successful residential projects in the area










Go Back Top