Project Overview:

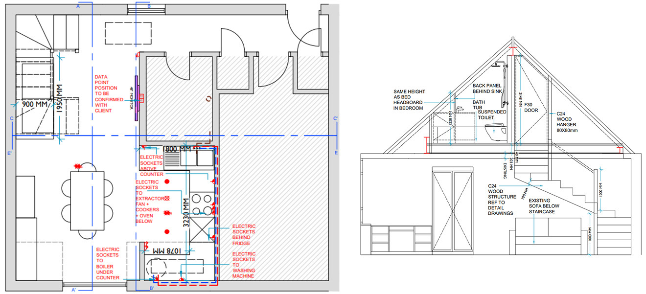
We recently completed a challenging Loft Conversion Project that required creative problem-solving. Our main task was to create a new bedroom and en-suite bathroom within the existing roofline, which presented significant space constraints. This project involved detailed planning, including the creation of precise construction drawings and careful consideration of plumbing and electrical requirements. We worked closely with builders throughout the process to ensure smooth execution. Despite the challenges, we successfully connected the new loft space to the existing house via staircases, resulting in a custom-designed loft that blends seamlessly with the original structure while maximizing functionality. Additionally, the client took this opportunity to update their kitchen on the floor below, which included removing a wall to create an open-plan living area.

Project Scope:


Our work on this project encompassed a comprehensive loft conversion, focusing on creating a bedroom and en-suite bathroom within the height limitations set by an approved planning application. Our responsibilities included:
1. Producing detailed construction drawings
2. Providing hands-on support to builders throughout the construction process
3. Coordinating with building control authorities to ensure compliance
4. Overseeing the entire transformation from initial design to final implementation
This project showcased our ability to manage complex architectural challenges due to the small available space while delivering high-quality results that met both regulatory requirements and client expectations.






Go Back Top